Bungalov Žírovy


Popis nemovitosti

Bungalov Žírovy

Žírovy, část obce Pičín, leží v krásné podbrdské krajině mezi Dobříší a Příbramí.

Rodinný dům, který Vám představujeme, je v současné době ve výstavbě a bude k nastěhování na podzim toho roku. Lokalita je opravdu velmi klidná, venkovského charakteru. Dům bude kompletně dokončený včetně základních terénních úprav.

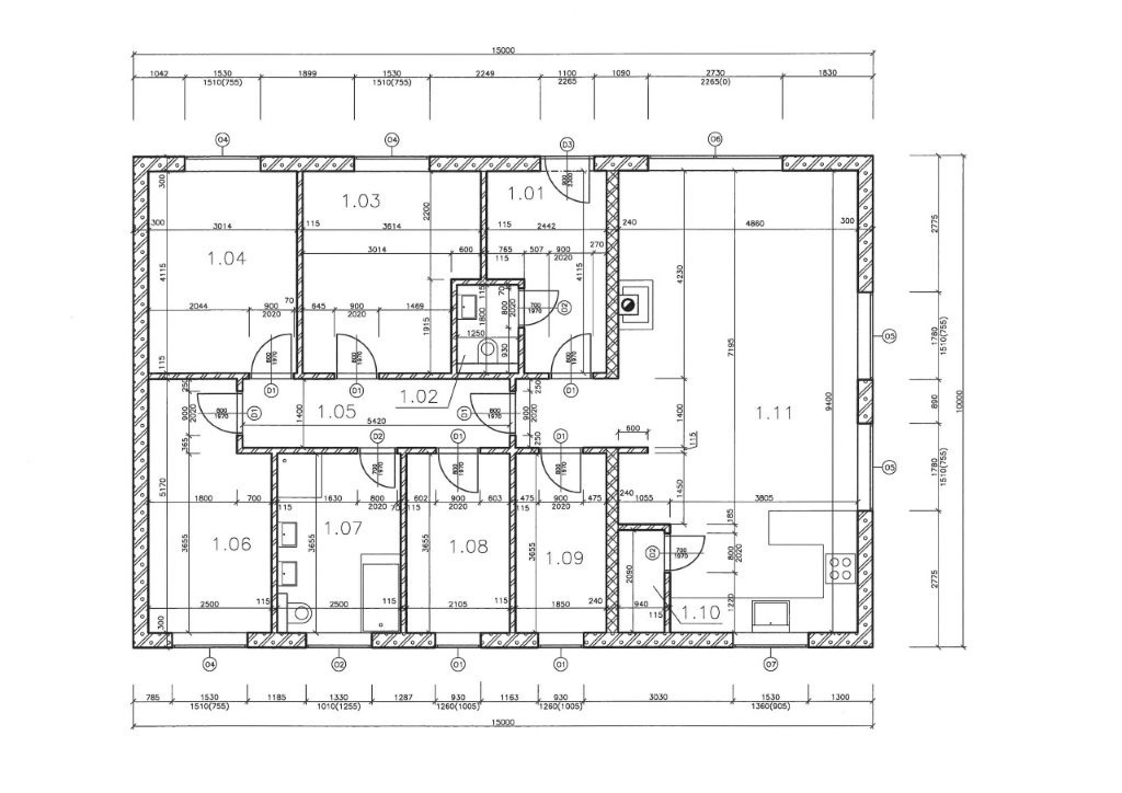
Přízemní dům o dispozici 5 kk má užitnou plochu 121 m2, pozemek je o výměře 1117 m2.

IS: el., voda z vlastní vrtné studny, jímka, podlahové vytápění v kombinaci s krbem.

Detaily k domu:

zděné zdivo, tepelná izolace, sedlová střecha se střešní krytinou Bramac, okna šestikomorová trojskla, vchodové dveře s bezpečnostním kováním, tepelné čerpadlo Daikin 10 kW, úsporná bodová svítidla, příprava na venkovní žaluzie, parkovací stání pro 2 auta, pojezdová brána s brankou, domovní telefon, terasa.

Součástí ceny jsou vnitřní zařizovací předměty – sanita a obklady v koupelně, podlahové krytiny, dveře vč. zárubní.  Jediné, co zbývá na Vás, je kuchyňská linka. Ta není v ceně domu zahrnuta.

Žírovy-Pičín jsou na trase PID l. 392 (Praha-Příbram). Nájezd na dálnici D4 je 9 km.

V Pičíně je dobrá občanská vybavenost, obecní úřad, pošta, MŠ, ZŠ, hospoda, potraviny. Kompletní pak v nedaleké Příbrami (6,5 km) nebo Dobříš (12 km).

Neváhejte nás kontaktovat pro bližší info.Těšíme se na viděnou.

Popis nemovitosti
NemovitostRodinný dům na PRODEJ Energetická náročnostB - Velmi úsporná
Velikost5+KK Užitná plocha121 m²
Zastavěná plocha151 m² Velikost pozemku1 117 m²
Typ domuPřízemní Typ stavbySamostatný
Druh budovyCihlový Počet podlaží budovy1
Počet pokojů5 pokojů a více VodaStudna
Stav objektuVe výstavbě TerasaAno
Parkování u objektuAno Elektoinstalace400/230V
OdpadJímka
Topení ústřední
Fotka - ENERGON reality
ENERGON reality

Přidáno 03. 04. 2025

  • AKTIVNÍ
  • prodej
  • Rodinné domy
9 490 000,- Kč

Žírovy

  • Žírovy

Zajímá vás tato nemovitost?


Podobné nemovitosti


Řadový RD 6+1 se zahradou
11 490 000,- Kč
  • AKTIVNÍ
  • prodej
  • Rodinné domy

Dobříš, U Ovčina

Rodinný dům Pičín
8 900 000,- Kč
  • AKTIVNÍ
  • prodej
  • Rodinné domy

Pičín

Rodinný dům 267 m2, pozemek 6957 m2
22 900 000,- Kč
  • REZERVACE
  • prodej
  • Rodinné domy

Malá Hraštice